検索
2469 件中の 21 件目~ 40 件目を表示
ページ送り
〔粗末な品進上の返礼に珍しき菓子頂戴したことへの礼などにつき書状〕
高木家文書デジタルライブラリー 大垣市
- 旗本高木家文書
- F 家政
- 05 交際
- (02)その他
〔年始状下書〕
高木家文書デジタルライブラリー 大垣市
- 旗本高木家文書
- F 家政
- 05 交際
- (02)その他
〔文書が入っていた木箱の蓋、御三家からの書状を納めている旨が箱書きされている〕
高木家文書デジタルライブラリー 大垣市
- 旗本高木家文書
- F 家政
- 05 交際
- (02)その他
〔御疱瘡全快目出度き件などにつき書状〕
高木家文書デジタルライブラリー 大垣市
- 旗本高木家文書
- F 家政
- 05 交際
- (02)その他
〔年始状〕
高木家文書デジタルライブラリー 大垣市
- 旗本高木家文書
- F 家政
- 05 交際
- (02)その他
〔年始状〕
高木家文書デジタルライブラリー 大垣市
- 旗本高木家文書
- F 家政
- 05 交際
- (02)その他
〔年始状大延引恐縮の至りにつき書状〕
高木家文書デジタルライブラリー 大垣市
- 旗本高木家文書
- F 家政
- 05 交際
- (02)その他
〔何寄りの御品戴き、修理様よりも送り下され早速賞翫申候につき礼状〕
高木家文書デジタルライブラリー 大垣市
- 旗本高木家文書
- F 家政
- 05 交際
- (02)その他
〔類焼の儀尾州へ御達しの件、膳所表へ奥方の手道具など焼失の儀報知すべき件などにつき書状〕
高木家文書デジタルライブラリー 大垣市
- 旗本高木家文書
- F 家政
- 07 家作
- (01)多良屋敷
〔類焼した住居再建の材木費用など尾張様へ拝借願うにつき、竹腰様らへ修理様仰せ進じの書付写〕
高木家文書デジタルライブラリー 大垣市
- 旗本高木家文書
- F 家政
- 07 家作
- (01)多良屋敷
覚(新造の冠木門などの作事、8両3分2朱にて請負)
高木家文書デジタルライブラリー 大垣市
- 旗本高木家文書
- F 家政
- 07 家作
- (01)多良屋敷
覚(御殿付縁側など3ヶ所の作事、6両2分2朱ト銀3匁にて請負)
高木家文書デジタルライブラリー 大垣市
- 旗本高木家文書
- F 家政
- 07 家作
- (01)多良屋敷
覚(御長屋17坪新造などの作事、26両1分ト銀7匁にて請負)
高木家文書デジタルライブラリー 大垣市
- 旗本高木家文書
- F 家政
- 07 家作
- (01)多良屋敷
〔御居間・御用所部屋など建物間取図〕
高木家文書デジタルライブラリー 大垣市
- 旗本高木家文書
- F 家政
- 07 家作
- (01)多良屋敷
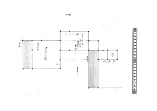
〔側向中小姓部屋など間取図〕
高木家文書デジタルライブラリー 大垣市
- 旗本高木家文書
- F 家政
- 07 家作
- (01)多良屋敷
御作事御台所賃大工木挽其外諸人足等十月迄之分凡取調
高木家文書デジタルライブラリー 大垣市
- 旗本高木家文書
- F 家政
- 07 家作
- (01)多良屋敷



















